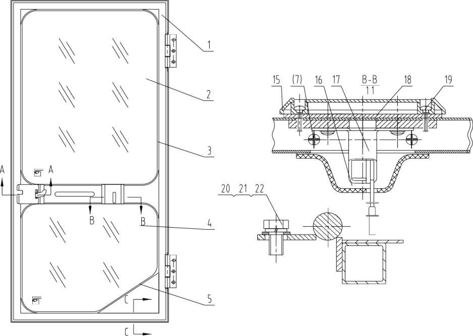
47C0736 001, DOOR AS-RH, LIUGONG PARTS CATALOGUES




| 47C0736 001 右门总成 DOOR AS-RH | |||||
|---|---|---|---|---|---|
| 件号 ITEM |
部件号 PART NO. | 版本 VER |
零件名称 | PART NAME | 数量 Q'TY |
| 1 | 23D1159 | 000 | 右门 | RIGHT DOOR | 1 |
| 2 | 87A0541 | 000 | 玻璃 | GLASS | 1 |
| 3 | 85A1158 | 000 | 门大玻璃胶条 L2602 |
SEAL | 1 |
| 4 | 87A0542 | 000 | 玻璃 | GLASS | 1 |
| 5 | 85A1159 | 000 | 门小玻璃胶条 L1900 |
SEAL | 1 |
| 6 | 00B0065 | 000 | 螺栓 | BOLT | 1 |
| 7 | 04B0198 | 000 | 螺钉 | SCREW | 8 |
| 8 | 85H0027 | 000 | 右门锁盖 | CAP | 1 |
| 9 | 04B0042 | 000 | 螺钉 | SCREW | 2 |
| 10 | 03B0036 | 000 | 螺母 | NUT | 4 |
| 11 | 47C0065 | 000 | 右门锁 | DOOR LOCK | 1 |
| 12 | 06B0024 | 000 | 垫圈 | WASHER | 7 |
| 13 | 04B0016 | 000 | 螺钉 | SCREW | 6 |
| 14 | 85A1160 | 000 | 门胶条 L4300 | SEAL | 1 |
| 15 | 86H0001 | 000 | 定位锁盖 | CAP | 1 |
| 16 | 85H0005 | 001 | 扣锁盖板 | COVER | 1 |
| 17 | 47C0191 | 000 | 门定位锁 | LOCK | 1 |
| 18 | 82H0007 | 000 | 橡胶密封垫 | CUSHION | 1 |
| 19 | 04B0099 | 000 | 螺钉 | SCREW | 4 |
| 20 | 00B0012 | 000 | 螺栓 | BOLT | 6 |
| 21 | 06B0001 | 000 | 垫圈 | WASHER | 6 |
| 22 | 06B0347 | 000 | 垫圈 | WASHER | 6 |



